logo MMCV logo MMCV

Condarco 3129

Edificio de viviendas ubicado en Villa del Parque, a metros de Agronomía, con un local gastronómico en Planta Baja que aporta comodidad y servicios al alcance de los residentes.

Cuenta con una terraza verde con sector de parrilla, ideal para compartir momentos al aire libre y disfrutar del entorno.

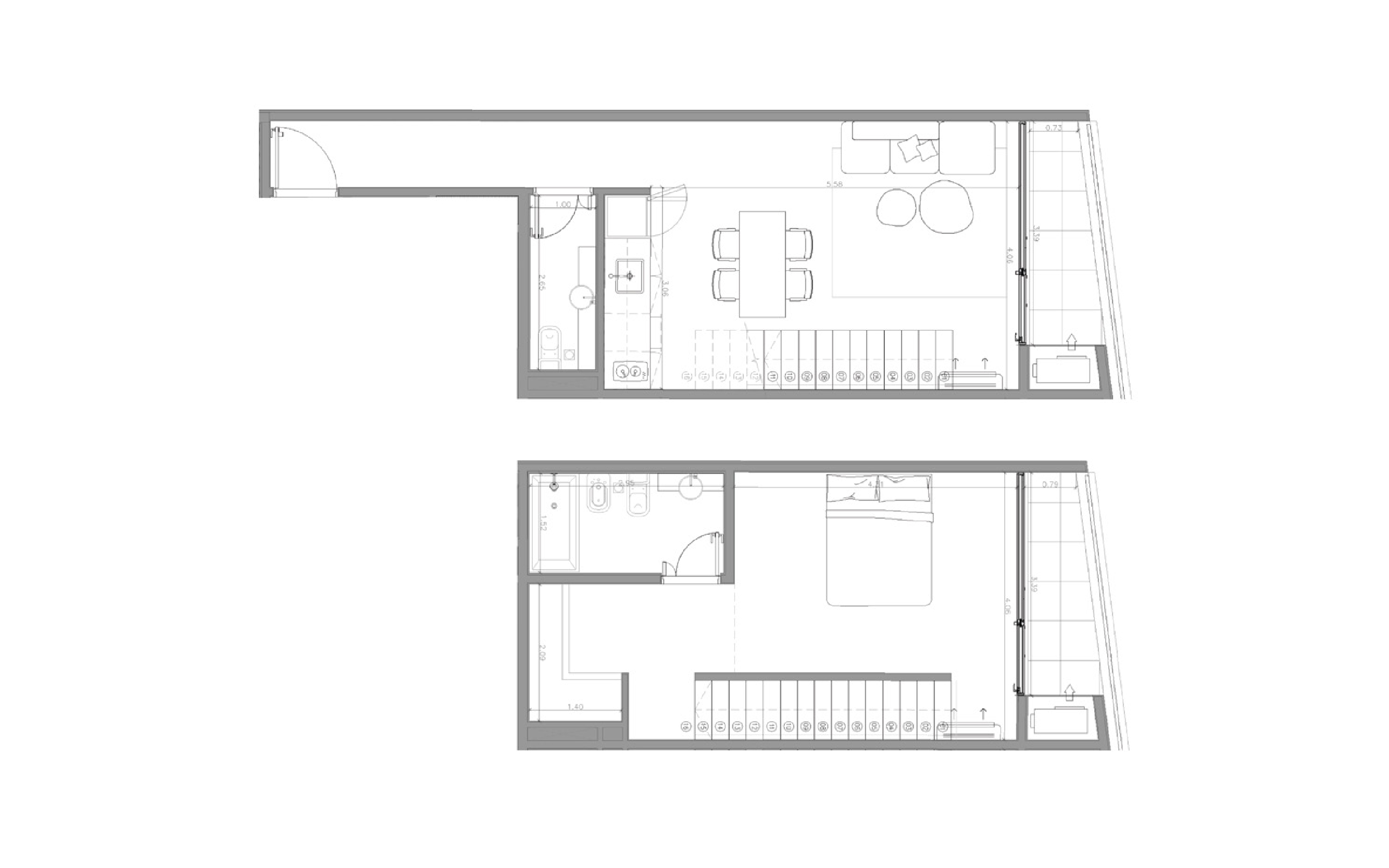
Unidades de 1 y 2 ambientes.
Dúplex en los últimos pisos, que brindan mayor privacidad y amplitud - último disponible.

Adquirir uno de nuestros productos es asegurar un diseño y una calidad singular. Te invitamos a formar parte de nuestros proyectos. La ubicación, la arquitectura, los amenities y los programas de usos mixtos garantizan el éxito de nuestros edificios. CONTACTANOS