logo MMCV logo MMCV

Elcano

Un lote único con dos frentes en esquina, sobre Elcano y Charlone. A metros de la Plaza 25 de Agosto y el polo cultural y gastronómico del Distrito Elcano.

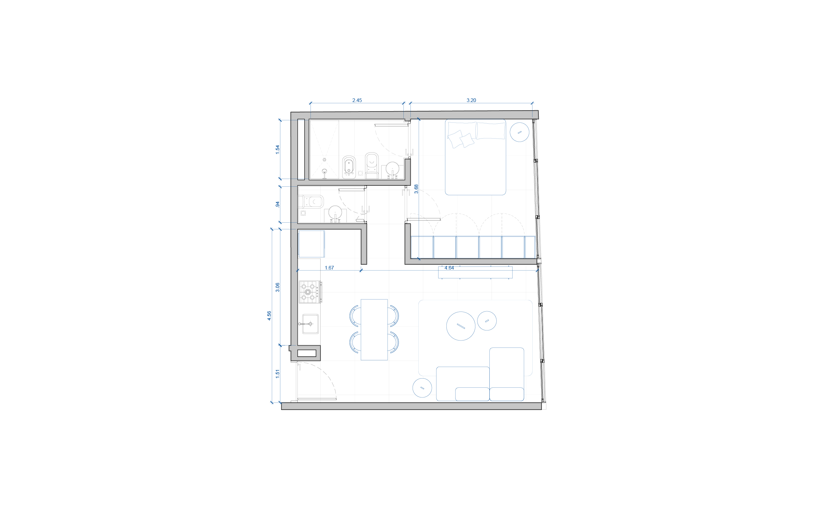
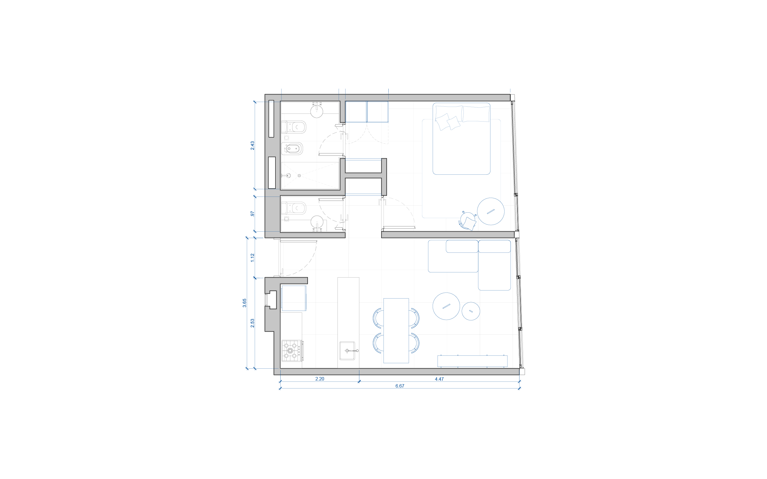
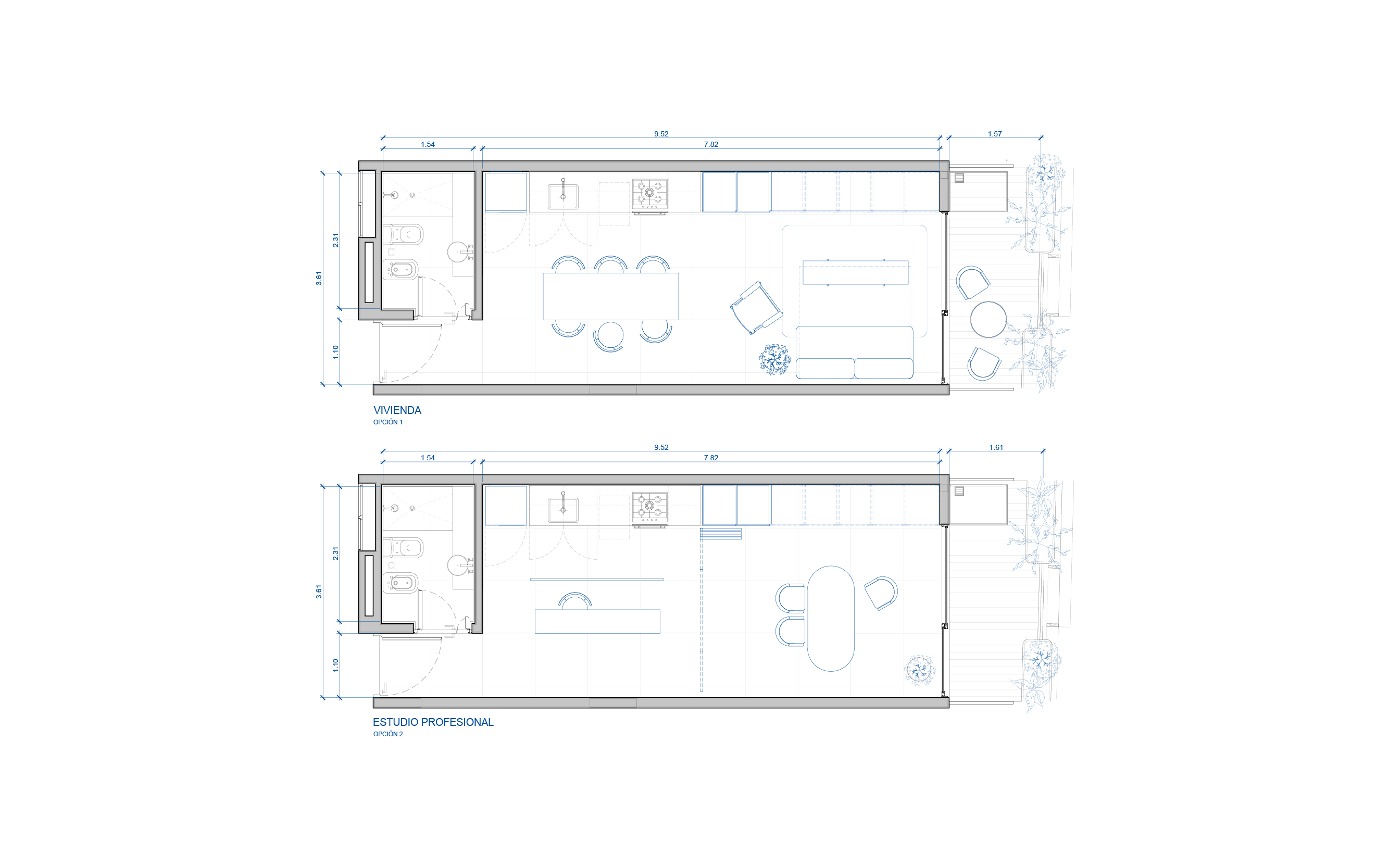
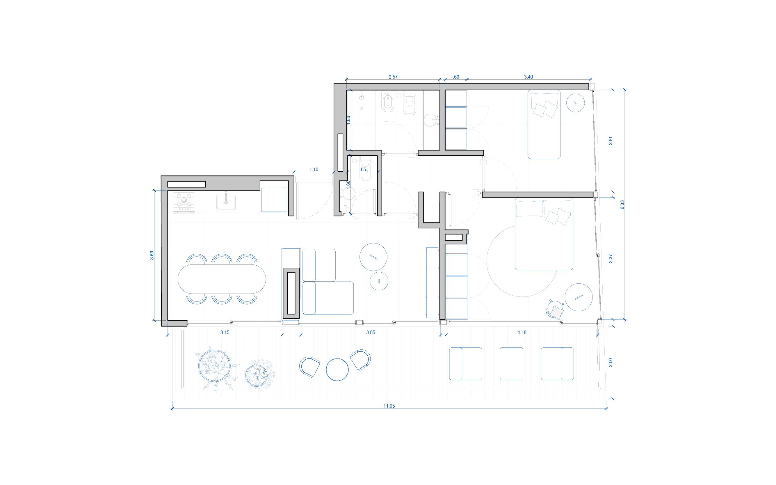
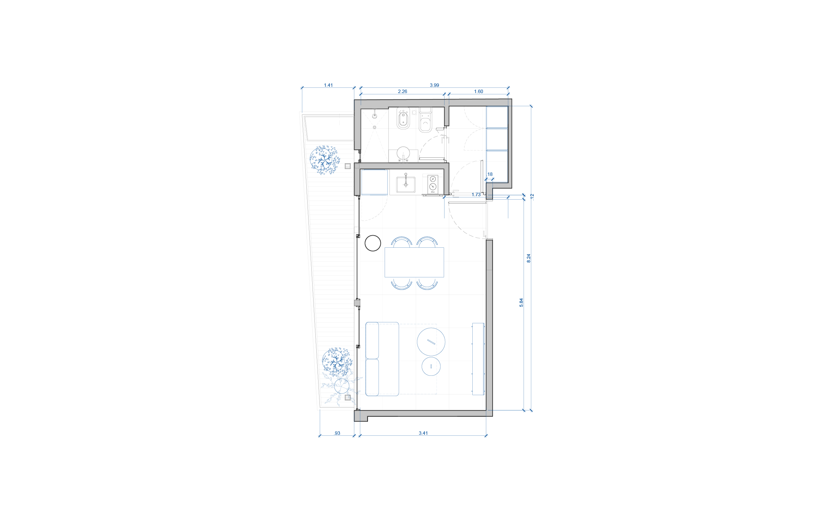
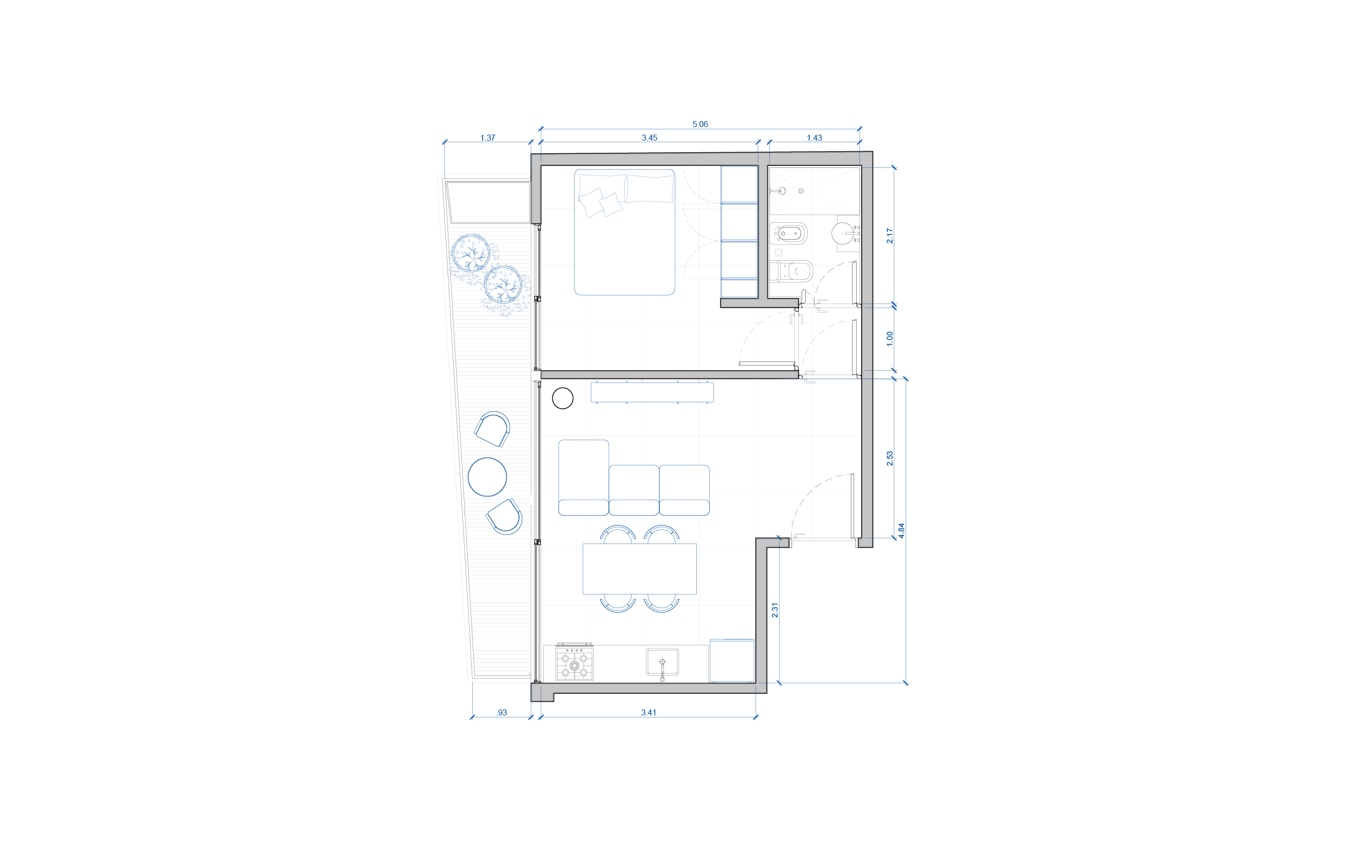
1, 2 y 3 ambientes con amplias expansiones.
Unidades para vivienda y apto profesional.

Piscina, parrillas, solarium, laundry y SUM.

Adquirir uno de nuestros productos es asegurar un diseño y una calidad singular. Te invitamos a formar parte de nuestros proyectos. La ubicación, la arquitectura, los amenities y los programas de usos mixtos garantizan el éxito de nuestros edificios. CONTACTANOS