logo MMCV logo MMCV

Helguera 3298

Un proyecto en una ubicación estratégica de Villa del Parque, a pasos de las avenidas principales del barrio y con acceso rápido a transporte, comercios y servicios.

Local gastronómico en Planta Baja y terraza con solarium y parrilla, para disfrutar de espacios al aire libre sin salir de casa.

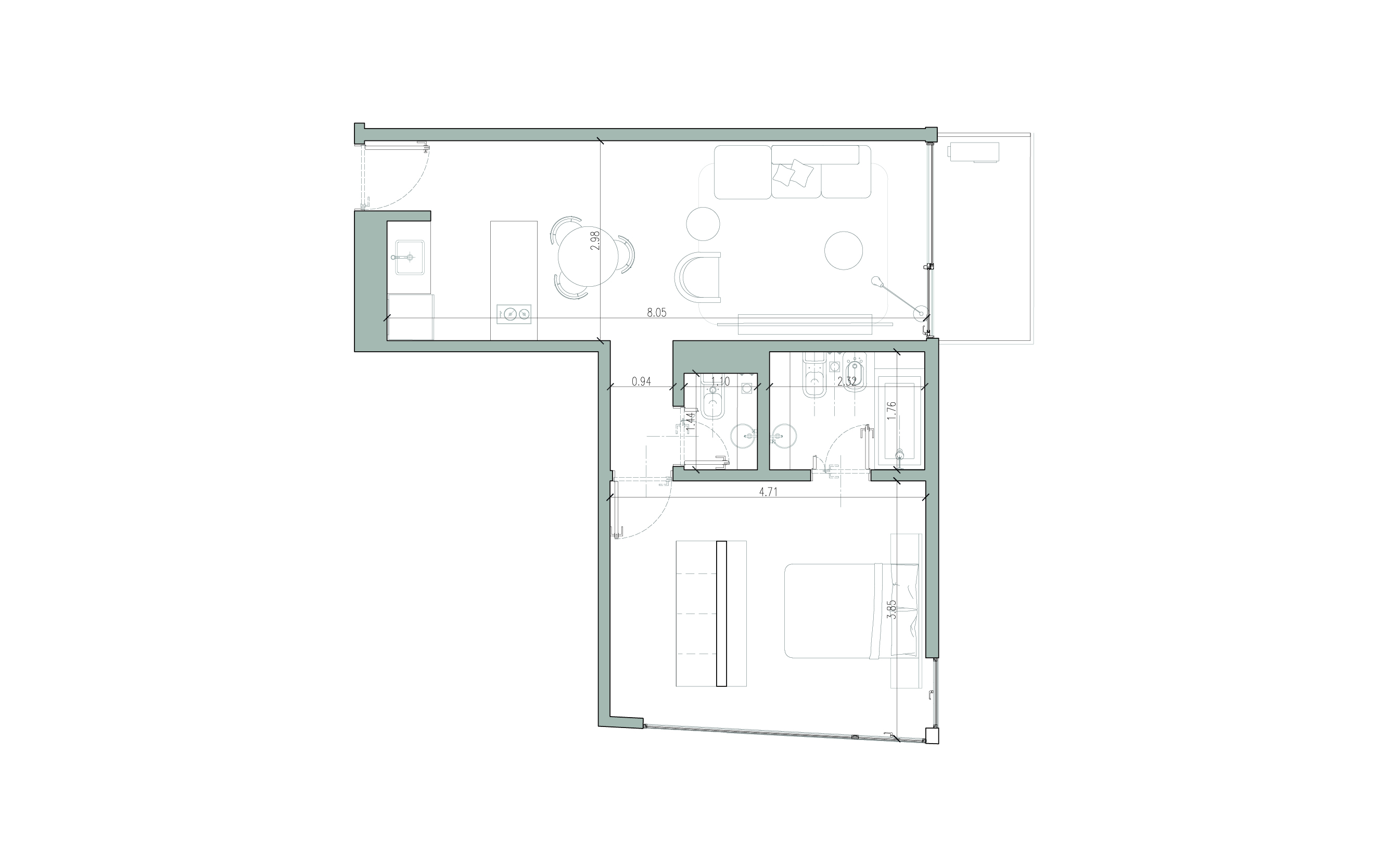
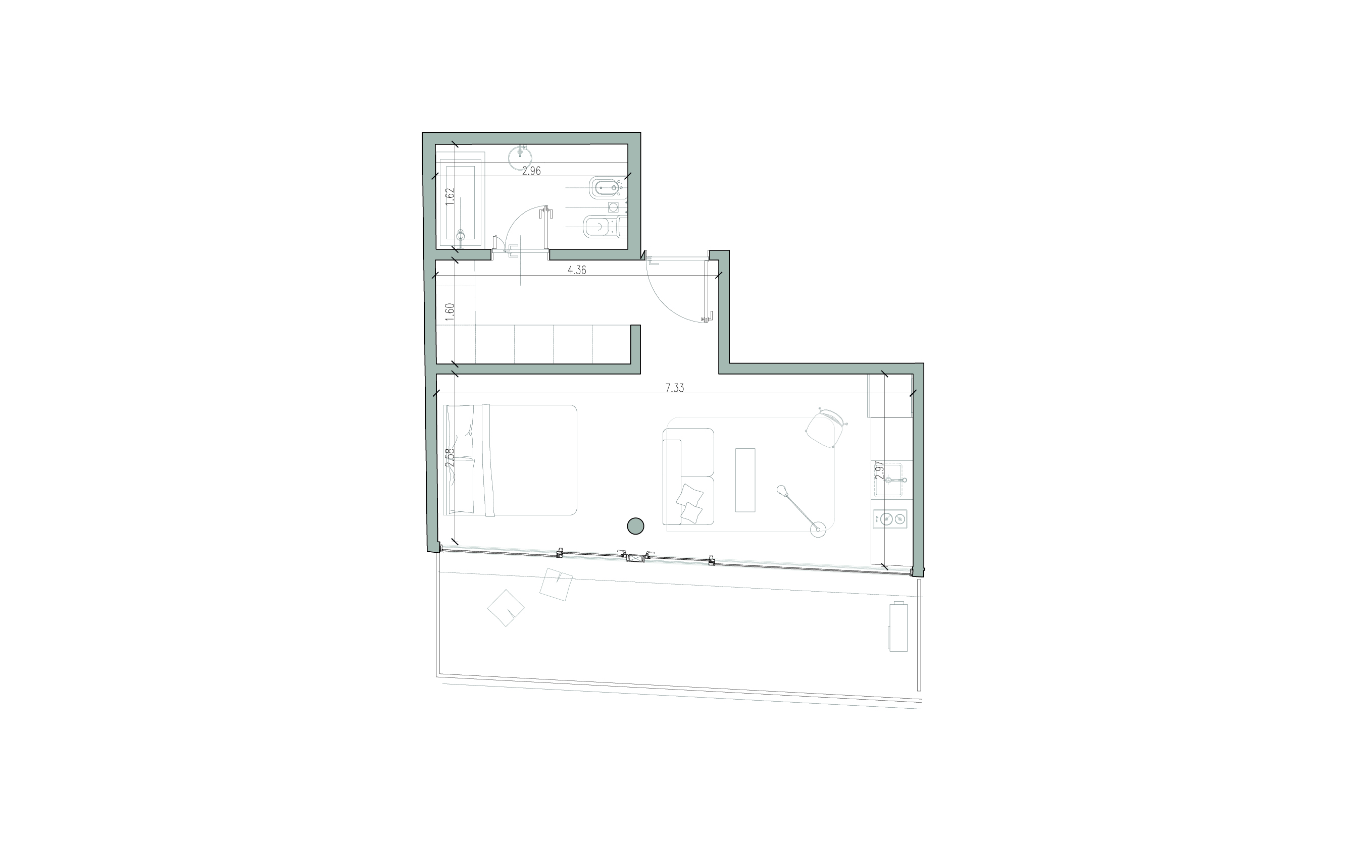
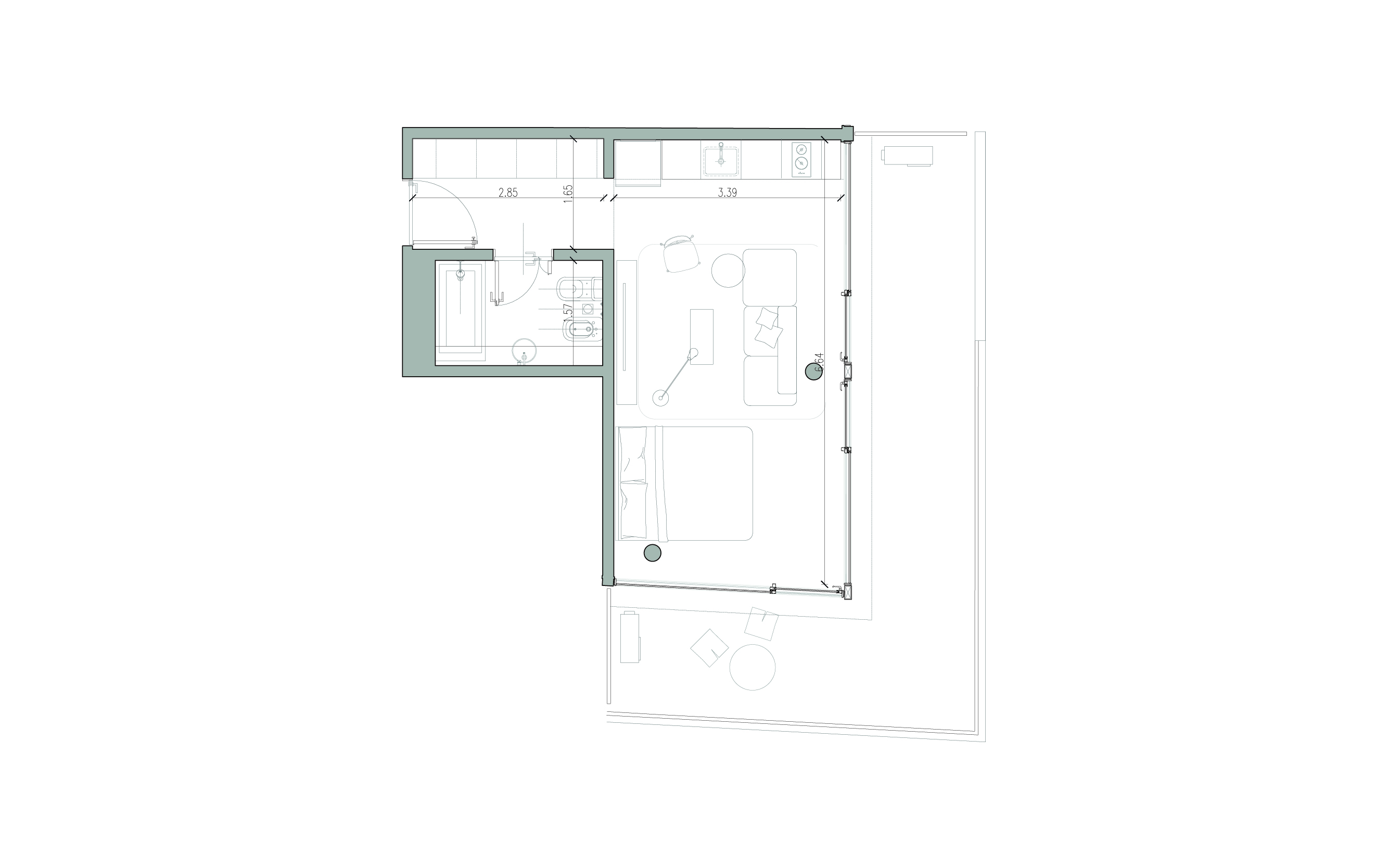
Unidades de 1 y 2 ambientes en un barrio en constante crecimiento, con todo al alcance y excelente conectividad.

Adquirir uno de nuestros productos es asegurar un diseño y una calidad singular. Te invitamos a formar parte de nuestros proyectos. La ubicación, la arquitectura, los amenities y los programas de usos mixtos garantizan el éxito de nuestros edificios. CONTACTANOS